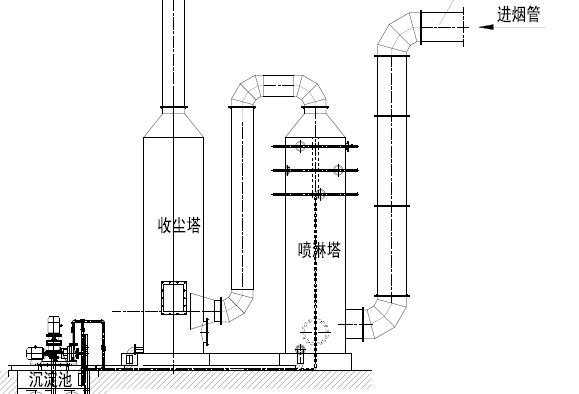
YGH1000型水膜脱硫除尘器主要有喷淋塔主筒体、上部注水管槽、下部溢水孔、清理孔、收尘塔、引风机及中和沉淀水泵循环系统等组成。主体及水管采用1Cr18Ni9Ti不锈钢,内部较平整光滑,有利于水膜整体形成;上部溢水采用独特环形水管加多喷头结构,布水均匀,提高了除尘器的除尘效果。该除尘器安装简单,现场吊装减少施工周期(进口、出口提供法兰尺寸,安装连接烟风道只要法兰对接就行)。
2、特点:
含尘及二氧化硫烟气切向进入除尘器后,烟气在筒体内高速旋转上升,筒体上部设有溢水槽、碱液(或水)经泵从除尘器上部溢水槽溢流至筒体内壁,形成一层2-4mm厚的均匀水膜不断下滑,烟气在离心力的作用下,灰粒甩到内壁被水膜湿润捕获,尘粒随水落到除尘器底部,灰水从溢水孔流至沉淀池,净化后的气体,通过筒体顶部锥体引出至收尘塔脱水后入烟囱,达到除尘目的。如在沉淀池中加入碱性水(PH值10-11,烟气脱硫反应方程式:SO2+Ca(OH)2+H2O=CaSO3+1/2H2O),可起到脱硫效果,达标排放。
3、工艺流程及安装示意图:

1)除尘效率达到96%以上;
2)排尘浓度小于200mg/m3;
3)林格曼黑度小于1级;
4)SO2小于900mg/m3 ,(PH10-12)脱硫率60-80%;
5)系统阻力小于1000Pa;
6)出口温度70-90度;
7)处理烟气量:3000-6000 Nm3/h;
8)耗水量:使用循环水、耗水低。
